New Headquarters for the Puerto Rico

Justice Department

 

Location:  San Juan, PR

Client:   Puerto Rico Authority for the

                Financing of Infrastructure (AFI - Design)

                Puerto Rico Department of Justice (PRDOJ)

 

Design:   2011-2013

Const. Cost: $42MM

 

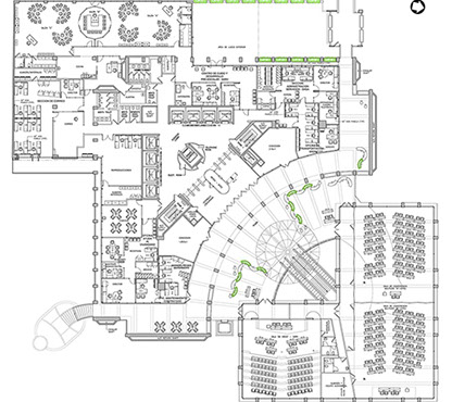
After completion of the Space Program Report in March 2012, archUD was engaged by AFI in the development of schematic and preliminary designs for a 424,000sf facility including independent design packages for Mechanical Improvements, Curtainwall and Furniture (FF&E) drawings & specifications for the 21-story structure built in 1970. Project was halted as a result of PR’s economic situation in 2013

 

 

New Headquarters for the Puerto Rico

Justice Department

 

Location:  San Juan, PR

Client:   Puerto Rico Authority for the

                Financing of Infrastructure (AFI - Design)

                Puerto Rico Department of Justice (PRDOJ)

 

Design:   2011-2013

Const. Cost: $42MM

 

After completion of the Space Program Report in March 2012, archUD was engaged by AFI in the development of schematic and preliminary designs for a 424,000sf facility including independent design packages for Mechanical Improvements, Curtainwall and Furniture (FF&E) drawings & specifications for the 21-story structure built in 1970. Project was halted as a result of PR’s economic situation in 2013